Bouwgrond | Poederlee

Omschrijving

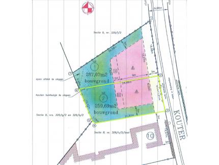
Bouwgrond, lot 2, groot 259,69mē voor halfopen bebouwing in het centrum van Poederlee.

Zeer rustige ligging nabij het centrum, winkels, bakker, scholen en openbaar vervoer. Gelegen in een straat met voornamelijk plaatselijk verkeer.

Voorgevelbreedte 8 meter, kroonlijsthoogte 6 meter, bouwdiepte: 11m op gelijkvloers en 9m op verdieping, stedenbouwkundige bouwvoorschriften en meer info zijn op eenvoudig verzoek te verkrijgen op kantoor, tel. 014 71 50 08 of christoffel@vastgoedpicavet.be.
Adres:   Kouter 8 - 2275 Poederlee
Pand op kaartOmgeving pand

Overige info

Tuin  Tuin met de ganse dag zon.
Orientatie tuin  W
Afstand tot openbaar vervoer  100 m
Afstand tot winkels  150 m
Afstand tot school  300 m

Geografische ligging

Adres  Kouter 8 - 2275 Poederlee
Vrij op  bij akte na betaling
Omgeving  Dorp

Bebouwing

Bebouwing  halfopen
Grond oppervlakte  260 mē
Bouw oppervlakte  88 mē
Woonoppervlakte  208 mē
Perceelbreedte  11 m
Perceeldiepte  23,50 m
Gevelbreedte  8 m
Aantal gevels  3
Kroonlijsthoogte  6m

Ruimtelijke ordening

Stedenbouwkundige vergunning verkregen    Ja
Optionele informatie    Woongebied
Dagvaardingen uitgebracht    Nee
Voorkooprecht op dit goed    Nee
Verkavelingsvergunning verkregen    Ja
Print deze pagina e-mail deze pagina vraag meer informatie Pand delen