Projectgrond | Geel
Omschrijving
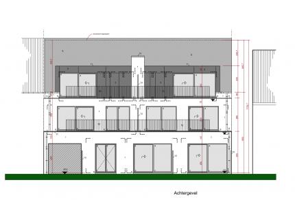
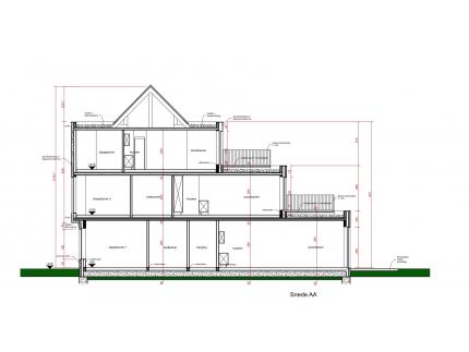
Projectgrond met VERGUNNING in het centrum van Winkelomheide.Het betreft een perceel van 2.056m² met een vergunning voor het bouwen van 6 appartementen + 11 garages. Verder is er nog een gedeelte toekomstgrond achteraan.
Het perceel is niet bouwrijp, er staan nog 2 woningen op het perceel.
Goedgekeurde OMGEVINGSVERGUNNING, dus ook in 2024 nog mogelijkheid tot 6% voor SLOOP en HEROPBOUW.
De appartementen met 1 of 2 slaapkamers hebben een oppervlakte van 65 tot 102m² met mooie tuin en/of terras, achteraan is er een vergunning voor 10 garages van circa 32m² (vrije hoogte 2,95m) en 1 garage/ magazijn met een oppervlakte van 195m².
Goede ligging in het centrum van Winkemomheide, vlakbij winkels, openbaar vervoer en scholen.
Indien u een plaatsbezoek of meer informatie wenst; bouwvergunning, goedgekeurde bouwplannen, inplantingsplan, … . Aarzel dan niet contact op te nemen op tel. 0496 51 10 10 of e-mail: info@vastgoedpicavet.be .
Pand op kaartOmgeving pand
Overige info
| Aantal garages | 11 |
| Afstand tot openbaar vervoer | 50 m |
| Afstand tot winkels | 100 m |
| Afstand tot school | 100 m |
Geografische ligging
| Adres | Winkelomseheide 156 - 2440 Geel |
| Vrij op | bij akte na betaling |
Bebouwing
| Grond oppervlakte | 2056 m² |
| Perceelbreedte | 15,95 m |
| Gevelbreedte | 15,95 m |
| Aantal gevels | 2 |
| Verdieping | 2 |
| EPC waarde kWh/m² per jaar | 1230 kWh/m² |
| EPC Certificaatnummer | 20190502-000216417-RES-1 |
Ruimtelijke ordening
1230

epc waarde: