Penthouse | Tielen

Omschrijving

Duplex van 98,16m˛, met 2 slaapkamers en 2 grote dakterrasen op de 2de en 3de verdieping in een modern kleinschalig nieuwbouwproject met 3 appartementen, Residentie EBENORA IV.

Het appartement is ZEER ENERGIEZUINIG.

Het project is gelegen 200 meter van het de markt van Tielen.

Het duplex bestaat uit een grote leefruimte met VEEL LICHTINVAL bestaande uit een zithoek, eethoek en een open keuken met aanpalende wasplaats/ berging.

De woonruimte geeft via grote schuiframen uit op de dakterrassen voor- en achteraan.

De nachthal vooraan geeft uit op een apart toilet, en een grote slaapkamer vooraan.

In de leefruimte is er een rechte trap naar de dakverdieping met grote slaapkamer en badkamer met mogelijkheid tot lavabomeubel, ligbad en douche.

De koper heeft inspraak in de binnenafwerking. De koper kan zelf de keuken, badkamer en de vloeren kiezen, meer hierover vindt u terug in het lastenboek.

Het appartement wordt zeer kwaliteitsvol afgewerkt met duurdere materialen.

TROEVEN:
•Zeer energiezuinig.
•Veel lichtinval.
•D-ventilatie, geen verluchtingsrooster in de ramen.
•Zonnepanelen per appartement.
•Zeer mooi dakterras.
•Modern uitstraling.
•Geluidsarme en energiezuinige lift.
•Hoogwaardige afwerking.

Het appartement wordt verkocht met 12% registratierechten op de grondwaarde en 21% Btw op de constructie of 6% btw indien u aan de voorwaarden voldoet. Zie overzicht en prijslijst in bijlage.

Per appartement is een autostaanplaats en grote berging voorzien die de koper dient aan te kopen.

Er is een gemeenschappelijke fietsenberging en vuilberging.

Indien u meer informatie wenst (prijzen, plannen van de verschillende appartementen, verkooplastenboek,…) of een toelichting bij u thuis of bij ons op kantoor wenst, aarzel dan niet contact op te nemen, tel: 014/715008 of 0496/511010 of mail naar christoffel@vastgoedpicavet.be .
Adres:   Gierlebaan 17, bus 3 - 2460 Tielen
Pand op kaartOmgeving pand

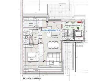
Indeling Verdieping 2

Berging  6,17 m˛Berging aan palend aan de keuken met aansluiting voor wasmachine en droogkast.
Keuken 1  10,00 m˛Open keuken met keukeneiland, de koper kan zijn eigen keuken samenstellen en heeft inspraak in de afwerking.
Living  41,48 m˛Leefruimte met veel lichtinval dankzij de grote ramen aan de achterzijde. De leefruimte geeft uit op beide dakterrassen via schuiframen.
Nachthal  3,94 m˛Nachthal met apart toilet, de nachthal geeft uit op de slaapkamers vooraan.
Slaapkamer 1  13,93 m˛Grote slaapkamer met raam aan de voorzijde, de koper kiest zelf de vloerbekleding.
Terras  13,73 m˛Groot terras aan de achterzijde, zuidwest georiënteerd met zon vanaf de middag tot avond.
Terras 2  9,91 m˛Groot terras aan de straatzijde, naar het oosten georiënteerd met ochtendzon.
Wc1  1,57 m˛Toilet met handen wasser.

Indeling Verdieping 3

Badkamer 1  8,50 m˛Badkamer met badkamermeubel en mogelijk tot douche en/of ligbad. De koper heeft inspraak in de afwerking.
Slaapkamer 2  13,62 m˛Grote slaapkamer in de dakverdieping, koper heeft inspraak in de vloerbekleding.

Overige info

Orientatie tuin  ZW
Aantal douches  1
Aantal carports  2
Aantal parkeerplaatsen  5
Afstand tot openbaar vervoer  200 m
Afstand tot winkels  200 m
Afstand tot school  500 m
Instapklaar  ja

Comfort

Keukentype  Geďnstalleerd
Verwarming  Vloerverwarming op basis van een warmtepompsysteem via diepteboring (zorgt ook voor warm water)
Verwarmingsketel  Individueel
Vloerverwarming  ja
Centrale verwarming  ja
Warmtepomp  ja
Bevloering  De koper heeft inspraak in de keuze van de vloeren.
Dubbelglas  Aluminium ramen met dubbele beglazing.
Videofoon  ja
Lift  ja
Aansluiting elektriciteit  ja
Meter voor elektriciteit  Individuele meter
Aansluiting riolering  ja
Aansluiting telefoonlijn  ja
Aansluiting Internet  ja
Aansluiting waterleiding  ja
Meter voor waterleiding  Individuele meter
Waterput  ja

Geografische ligging

Adres  Gierlebaan 17, bus 3 - 2460 Tielen
Vrij op  bij oplevering

Bebouwing

Bebouwing  halfopen
Bouwjaar  2023
Nieuwbouw  ja
Grond oppervlakte  407 m˛
Bouw oppervlakte  98,16 m˛
Woonoppervlakte  98,16 m˛
Aantal slaapkamers  2
Aantal badkamers  1
Aantal wc's  2

Ruimtelijke ordening

Stedenbouwkundige vergunning verkregen    Ja
Optionele informatie    Woongebied
Dagvaardingen uitgebracht    Nee
Voorkooprecht op dit goed    Nee
Verkavelingsvergunning verkregen    Nee
Print deze pagina e-mail deze pagina vraag meer informatie Pand delen