Duplex | Lichtaart

Omschrijving

Nieuwbouw duplex met 1 slaapkamer op de tweede- en dakverdieping dakterras

Residentie “FORTUNA”, verwijzend naar de godin van het lot en het geluk, is een kleinschalig project in het centrum van Lichtaart, bestaande uit 7 appartementen met 1, 2 of 3 slaapkamers, allen met terras en/of tuin.

Ondergronds zijn er 9 autostaanplaatsen en 7 bergingen, bovengronds zijn er achteraan 2 autostaanplaatsen en vooraan een gemeenschappelijke fietsen- en vuilberging.

Het appartement bestaat uit een inkomhal met gastentoilet die uitgeeft op de leefruimte met zit- en eethoek, open keuken en kleine berging. De leefruimte geeft uit op een dakterras achteraan.

Onder dak zijn er een slaapkamers, een badkamer en bergruimte.

De koper heeft inspraak in de binnen afwerking van het appartement en kan zelf de vloer, keuken, badkamer, … type verwarming kiezen.

In het appartement is een grote, rolstoelvriendelijke lift voorzien.

Het appartement wordt verkocht onder de wet Breyne met 10% registratie op de grondwaarde en met 21% btw op de constructie. Indien u in aanmerking komt is 6% btw ook mogelijk.

Per appartement is een autostaanplaats en berging voorzien die de koper dient aan te kopen.

De appartementen worden afgewerkt conform de huidige voorgeschreven energienormen en zijn zeer energiezuinig.

TROEVEN:
•Zeer energiezuinig: isolatie en geluidsisolatie tussen de appartementen.
•Geluidsarme en energiezuinige liften.
•Mooi dakterras.
•Hoogwaardige afwerking.

Indien u meer informatie wenst (prijzen, plannen van de verschillende appartementen, verkooplastenboek, …) of een toelichting bij u thuis of bij ons op kantoor wenst, aarzel dan niet contact op te nemen, tel: 014/715008 of 0496/511010 of stuur een e-mail christoffel@vastgoedpicavet.be .
Adres:   Leistraat 6, bus 6 - 2460 Lichtaart
Pand op kaartOmgeving pand

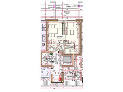
Indeling Verdieping 2

Berging  2,93 m˛Kleine bergruimte ter hoogte van de keuken.
Inkomhal  2,62 m˛Inkomhal met gastentoilet. De inkomhal geeft uit op de slaapkamer de leefruimte.
Keuken 1  4,00 m˛De koper kan zelf zijn keuken samenstellen al dan niet met keukeneiland.
Living  23,55 m˛Leefruimte bestaande uit zit- en eethoek, open keuken en groot schuifraam naar het groot dakterras.
Terras  8,00 m˛Dakterras achteraan ter hoogte van de leefruimte, bereikbaar via een schuifraam.

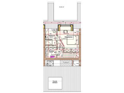
Indeling Verdieping 3

Badkamer 1  4,56 m˛De koper heeft inspraak in de afwerking, kiest zelf ligbad en/of douche , toilet en badkamermeubel.
Nachthal  1,47 m˛Hal geeft uit op de slaapkamers en de wasruimte.
Slaapkamer 1  12,65 m˛Grote slaapkamer vooraan, de koper kiest zelf de vloer. Rolluiken kunnen mits meerprijs.
Wasruimte  4,08 m˛Bergruimte aansluitend aan de slaapkamer. Hier is eveneens de verwarmingsketel, ventilatie en aansluiting wasmachine en droogkast voorzien.

Overige info

Afstand tot openbaar vervoer  50 m
Afstand tot winkels  75 m
Afstand tot school  275 m

Comfort

Keukentype  Geďnstalleerd
Verwarming  Aardgas - Aardgas - condensatieketel op aardgas met radiatoren. Mits meerprijs kan ook vloerverwarming of een warmtepomp.
Verwarmingsketel  Individueel
Centrale verwarming  ja
Bevloering  De koper heeft inspraak in de bevloering (tegels, parket, keramisch parket, ...)
Dubbelglas  Hoogrendementsbeglazing K1.0
Parlofoon  ja
Videofoon  ja
Lift  ja
Aansluiting elektriciteit  ja
Meter voor elektriciteit  Individuele meter
Aansluiting aardgas  ja
Meter voor aardgas  Individuele meter
Aansluiting telefoonlijn  ja
Aansluiting Internet  ja
Aansluiting waterleiding  ja
Meter voor waterleiding  Individuele meter

Geografische ligging

Adres  Leistraat 6, bus 6 - 2460 Lichtaart
Vrij op  bij oplevering
Omgeving  Dorp

Bebouwing

Bouwjaar  2023
Nieuwbouw  ja
Grond oppervlakte  69,56 m˛
Bouw oppervlakte  69,56 m˛
Woonoppervlakte  69,56 m˛
Aantal slaapkamers  1
Aantal badkamers  1

Ruimtelijke ordening

Stedenbouwkundige vergunning verkregen    Ja
Optionele informatie    Woongebied
Dagvaardingen uitgebracht    Nee
Voorkooprecht op dit goed    Nee
Verkavelingsvergunning verkregen    Nee

Downloads

    Residentie_FORTUNA_plannen.pdf
Print deze pagina e-mail deze pagina vraag meer informatie Pand delen