Duplex | Kasterlee

Omschrijving

Nieuwbouw duplex met 2 slaapkamers en dakterras

Residentie “CARDINA”, is een kleinschalig project in een rustige straat in het centrum van Kasterlee, bestaande uit 5 appartementen met 1, 2 of 3 slaapkamers, allen met terras en/of tuin.

Bovengronds zijn er 8 autostaanplaatsen waarvan 3 carports, en een gemeenschappelijke fiets- en vuilberging.

Het appartement bestaat uit een ruime inkomhal met apart gastentoilet en berging achteraan, de inkom geeft uit op de leefruimte met open keuken, eethoek en zithoek ter hoogte van het dakterras achteraan.

Onder dak zijn er twee slaapkamers, een badkamer en apart toilet.

De koper heeft inspraak in de binnen afwerking van het appartement en kan zelf de vloer, keuken, badkamer, … kiezen.

In het appartement is een grote, rolstoelvriendelijke lift voorzien.

Het appartement wordt verkocht onder de wet Breyne met 12% registratie op de grondwaarde en met 21% btw op de constructie.

Per appartement is een autostaanplaats en berging voorzien die de koper dient aan te kopen.

De appartementen worden afgewerkt conform de huidige voorgeschreven energienormen en zijn zeer energiezuinig.

TROEVEN:
•Rustige ligging
•Zeer energiezuinig: warmtepomp met vloerverwarming.
•Geluidsarme en energiezuinige liften.
•Zeer ruim appartement.
•Mooi dakterras.
•Hoogwaardige afwerking.

Indien u meer informatie wenst (prijzen, plannen van de verschillende appartementen, verkooplastenboek, …) of een toelichting bij u thuis of bij ons op kantoor wenst, aarzel dan niet contact op te nemen, tel: 014/715008 of 0496/511010 of stuur een e-mail christoffel@vastgoedpicavet.be
Adres:   Mgr. Cardijnstraat 43, bus 5 - 2460 Kasterlee
Pand op kaartOmgeving pand

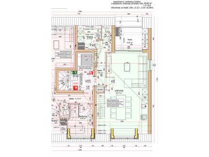
Indeling Verdieping 2

Berging  5,14 m˛Bergruimte aansluitend ter hoogte van de inkom. Hier is eveneens de warmtepomp, ventilatie en aansluiting wasmachine en droogkast voorzien.
Inkomhal  5,81 m˛De inkomhal geeft uit op de leefruimte en het toilet en de berging.
Keuken 1  10,00 m˛De koper kan zelf zijn keuken samenstellen al dan niet met keukeneiland.
Living  39,17 m˛Leefruimte bestaande uit zit- en eethoek, open keuken en groot schuifraam naar het groot dakterras.
Slaapkamer 1  12,80 m˛Grote slaapkamer achteraan met dakkapel, de koper kiest zelf de vloer. Rolluiken kunnen mits meerprijs.
Terras  8,05 m˛Dakterras achteraan ter hoogte van de leefruimte, bereikbaar via een schuifraam.
Wc1  1,20 m˛Hangtoilet met handenwasser ter hoogte van de inkomhal.

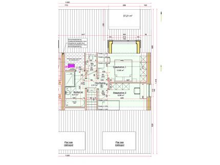
Indeling Verdieping 3

Badkamer 1  6,01 m˛De koper heeft inspraak in de afwerking, kiest zelf ligbad en/of douche en badkamermeubel.
Nachthal  2,51 m˛Hal geeft uit op de slaapkamers en de badkamer en apart toilet.
Slaapkamer 2  8,99 m˛Kinderkamer vooraan, de koper kiest zelf de vloer. Rolluiken kunnen mits meerprijs.
Wc2  1,31 m˛Hangtoilet ter hoogte van de nachthal.

Overige info

Orientatie tuin  Z
Afstand tot openbaar vervoer  100 m
Afstand tot winkels  100 m
Afstand tot school  100 m

Comfort

Keukentype  Geďnstalleerd
Verwarming  Warmtepomp met vloerverwarming.
Verwarmingsketel  Individueel
Centrale verwarming  ja
Bevloering  De koper heeft inspraak in de bevloering (tegels, parket, keramisch parket, ...)
Dubbelglas  Hoogrendementsbeglazing K1.0
Parlofoon  ja
Videofoon  ja
Lift  ja
Aansluiting elektriciteit  ja
Meter voor elektriciteit  Individuele meter
Aansluiting telefoonlijn  ja
Aansluiting Internet  ja
Aansluiting waterleiding  ja
Meter voor waterleiding  Individuele meter

Geografische ligging

Adres  Mgr. Cardijnstraat 43, bus 5 - 2460 Kasterlee
Vrij op  bij oplevering
Omgeving  Dorp

Bebouwing

Bouwjaar  2025
Nieuwbouw  ja
Grond oppervlakte  100 m˛
Bouw oppervlakte  100 m˛
Woonoppervlakte  100 m˛
Verdieping  2
Aantal slaapkamers  2
Aantal badkamers  1
Aantal wc's  2

Ruimtelijke ordening

Stedenbouwkundige vergunning verkregen    Ja
Optionele informatie    Woongebied
Dagvaardingen uitgebracht    Nee
Voorkooprecht op dit goed    Nee
Verkavelingsvergunning verkregen    Nee
Print deze pagina e-mail deze pagina vraag meer informatie Pand delen