Appartement | Gierle

Omschrijving

Mooi appartement op de eerste verdieping met 2 slaapkamers en groot dakterras op het zuidwesten gericht.

Residentie “PISSELAAR”, verwijzend naar een historische kapel op de Beersebaan, is een kleinschalig project nabij het centrum van Gierle, bestaande uit 5 appartementen (1, tot 3 slaapkamers), allen met terras en/of tuin.
Achteraan zijn er 7 parkeerplaatsen en vooraan een fietsenstalling.

Het appartement bestaat uit een inkomhal met vestiaire en gastentoilet die uitgeeft op de badkamer en de twee grote slaapkamers vooraan.
Achteraan is er een leefruimte met zit- en eethoek, open keuken en berging.

De koper heeft inspraak in de binnen afwerking van het appartement en kan zelf de vloer, keuken, badkamer, … kiezen. Meer info hierover vindt u in de lastenboeken terug.

In het project is een grote, rolstoelvriendelijke lift voorzien.

Achteraan is per appartement een autostaanplaats voorzien die de koper dient aan te kopen.

Het appartement wordt verkocht onder de wet Breyne met 10% registratie op de grondwaarde en met 21% Btw op de constructie.

De appartementen worden afgewerkt conform de huidige voorgeschreven energienormen en zijn zeer energiezuinig.

TROEVEN:
•Zeer energiezuinig: isolatie en geluidsisolatie tussen de appartementen.
•Geluidsarme en energiezuinige liften.
•Mooi uitzicht achteraan.
•Grote terassen en/of tuin.
•Hoogwaardige afwerking.

Indien u meer informatie wenst (prijzen, plannen van de verschillende appartementen, verkooplastenboek,…) of een toelichting bij u thuis of bij ons op kantoor wenst, aarzel dan niet contact op te nemen, tel: 014/715008 of 0496/511010 of stuur een e-mail christoffel@vastgoedpicavet.be .
Adres:   Beersebaan 141, bus 101 - 2275 Gierle
Pand op kaartOmgeving pand

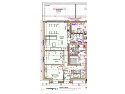
Indeling Verdieping 1

Badkamer 1  5.94 m˛De koper heeft inspraak in de afwerking, kiest zelf ligbad en/of douche en badkamermeubel.
Berging  5.08 m˛Bergruimte aanpalend aan de leefruimte, hier is aansluiting voorzien voor wasmachine en droogkast.
Inkomhal  9.44 m˛Inkomhal met mogelijkheid tot vestiairekast, aanpalend gastentoilet. De inkomhal geeft uit op de badkamer, slaapkamers en de leefruimte achteraan.
Keuken 1  9 m˛De koper kan zelf zijn keuken samenstellen, al dan niet met keukeneiland.
Living  32.98 m˛Leefruimte bestaande uit zit- en eethoek en open keuken en groot schuifraam naar het terras.
Slaapkamer 1  13.2 m˛Grote slaapkamer vooraan, de koper kiest zelf de vloer. Rolluiken kunnen mits meerprijs.
Slaapkamer 2  12.09 m˛Slaapkamer vooraan, de koper kiest zelf de vloer. Rolluiken kunnen mits meerprijs.
Terras  24.44 m˛Terras ter hoogte van de woonkamer, bereikbaar via een schuifraam.
Wc1  1.66 m˛Hangtoilet met handenwasser ter hoogte van de inkomhal.

Overige info

Orientatie tuin  ZW
Afstand tot openbaar vervoer  75 m
Afstand tot winkels  500 m
Afstand tot school  850 m

Comfort

Keukentype  Geďnstalleerd
Verwarming  Aardgas - Condensatieketel op aardgas met radiatoren, mits meerprijs kan ook vloerverwarming.
Verwarmingsketel  Individueel
Centrale verwarming  ja
Bevloering  De koper heeft inspraak in de bevloering (tegels, parket, keramisch parket, kurk, gietvloer, ...)
Rolluiken  Rolluiken kunnen op aanvraag voorzien worden.
Dubbelglas  Hoogrendementsbeglazing K1.1
Videofoon  ja
Aansluiting elektriciteit  ja
Meter voor elektriciteit  Individuele meter
Aansluiting aardgas  ja
Meter voor aardgas  Individuele meter
Aansluiting telefoonlijn  ja
Aansluiting Internet  ja
Aansluiting waterleiding  ja
Meter voor waterleiding  Individuele meter

Geografische ligging

Adres  Beersebaan 141, bus 101 - 2275 Gierle
Vrij op  bij oplevering

Bebouwing

Bouwjaar  2020
Nieuwbouw  ja
Woonoppervlakte  82,72 m˛
Verdieping  1 van 2
Aantal slaapkamers  2
Aantal badkamers  1

Ruimtelijke ordening

Stedenbouwkundige vergunning verkregen    Ja
Optionele informatie    Woongebied
Dagvaardingen uitgebracht    Nee
Voorkooprecht op dit goed    Nee
Verkavelingsvergunning verkregen    Nee
Print deze pagina e-mail deze pagina vraag meer informatie Pand delen