Dakappartement | Kasterlee
Omschrijving
Ruim appartement met 3 slaapkamers op de eerste verdieping met dakterras en garage in het centrum van Kasterlee.GEEN gemeenschappelijk kosten.
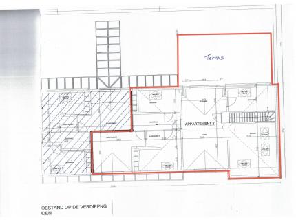
Het appartement (130mē) bestaat gelijkvloers uit een inkomhal met berging en rechte trap naar het appartement.
Het appartement bestaat uit een ruime woonkamer met aanpalend een volledig ingerichte keuken met eethoek. De woonkamer geeft via een schuifraam uit op het groot dakterras (30 mē) achteraan.
Aanpalend is er een badkamer met ligbad, toilet, douche en lavabo-meubel.
Achteraan is er een nachthal die uitgeeft op de 3 slaapkamers.
In de huurprijs is een individuele GARAGEBOX inbegrepen.
Het appartement is VOLLEDIG GESCHILDERD.
Het appartement ligt op wandelafstand van het centrum, de winkels, het openbaar vervoer en de scholen.
Er is geen lift aanwezig.
Indien u meer informatie wenst of een plaatsbezoek, contacteer ons via tel. 014 71 50 08 of e-mail: christoffel@vastgoedpicavet.be
                    Pand op kaartOmgeving pand
                
                    
            | Indeling Gelijkvloers | ||
|---|---|---|
| Garage | 15 mē | Afgesloten autostaanplaats/autogarage. | 
| Inkomhal | 7 mē | Inkomhal met ingemaakte kast/berging en rechte trap naar boven. | 
| Indeling Verdieping 1 | ||
| Badkamer 1 | 9,40 mē | Volledig ingerichte badkamer; ligbad, douche en lavabo-meubel. | 
| Keuken 1 | 24 mē | Volledig ingerichte keuken met eethoek. | 
| Living | 35 mē | Ruime woonkamer die uitgeeft op een ruim dakterras achteraan. | 
| Nachthal | 7,49 mē | Nachthal die uitgeeft op de 3 slaapkamers. | 
| Slaapkamer 1 | 16,21 mē | Ruime slaapkamer aan de voorzijde. | 
| Slaapkamer 2 | 14 mē | Slaapkamer 2 aan de voorzijde. | 
| Slaapkamer 3 | 10 mē | Slaapkamer aan de achterzijde. | 
| Terras | 30 mē | Ruim dakterras aan de achterzijde met zon gedurende de namiddag en avond. | 
Overige info
| Afstand tot openbaar vervoer | 75 m | 
| Afstand tot winkels | 50 m | 
| Afstand tot school | 400 m | 
Comfort
| Keukentype | Geïnstalleerd | 
| Verwarming | Aardgas - Centrale verwarming. | 
| Verwarmingsketel | Individueel | 
| Centrale verwarming | ja | 
| Aansluiting elektriciteit | ja | 
| Meter voor elektriciteit | Individuele meter | 
| Aansluiting riolering | ja | 
| Aansluiting aardgas | ja | 
| Meter voor aardgas | Individuele meter | 
| Aansluiting telefoonlijn | ja | 
| Aansluiting Internet | ja | 
| Aansluiting waterleiding | ja | 
| Meter voor waterleiding | Individuele meter | 
Geografische ligging
| Adres | Pastorijstraat 64, bus 2 - 2460 Kasterlee | 
| Vrij op | 01/08/2017 | 
| Omgeving | Dorp | 
| Bestemming | Hoofdverblijf | 
Bebouwing
| Bouwjaar | 2008 | 
| Bouw oppervlakte | 128 mē | 
| Woonoppervlakte | 128 mē | 
| EPC waarde kWh/mē per jaar | 195 kWh/mē | 
| EPC Certificaatnummer | 20170514-0001960779-1 | 
| Aantal slaapkamers | 3 | 
| Aantal badkamers | 1 | 
| Aantal wc's | 1 | 
Ruimtelijke ordening

195

  
epc waarde: 
 
        





